Informacije o proizvodu
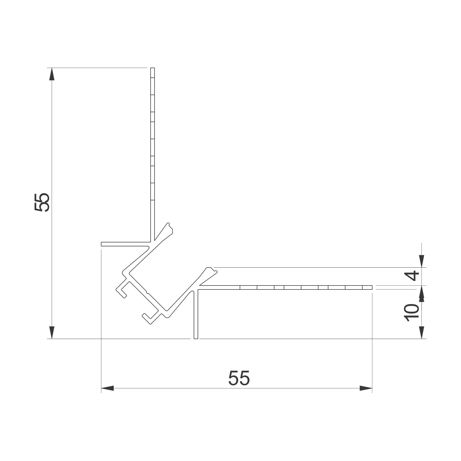
GLAX ugradni profil za gipsane ploče - unutrašnji ugao
Ugaoni profil se koristi prilikom ugradnje gipsanih ploča u enterijerima, a služi za postizanje dekorativnih i funkcionalnih svetlosnih efekata.
Materijal: Aluminijum
Dužina profila: 3m
Završna obrada: Srebro mat
*Cena se odnosi na komad profila
Za LED profil postoje i beli PVC difuzori/poklopci koji se poručuju nezavisno od samog profila.











































































